Kawalerka — 2019
Trójmiasto · Kawalerka

Kawalerka — 2019 Studio apartment — 2019

Lokalizacja Location Trójmiasto
Typ Type Kawalerka Kawalerka
Metraż Area ~26 m²
Styl Style Minimalizm
Zakres Scope Projekt wnętrza

Wyzwanie projektowe

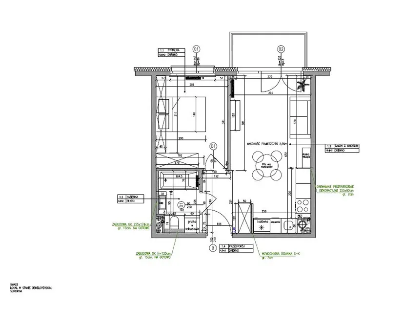
Jeden z pierwszych projektów DeMare Studio — kawalerka o powierzchni 26 m², w której cały program funkcjonalny musiał zmieścić się w jednej przestrzeni. Klientka pracowała z domu i potrzebowała nie tylko sypialni i kuchni, ale też wygodnego miejsca do pracy. Dodatkowym ograniczeniem był układ z jednym oknem, co wymagało przemyślanego planu, żeby światło docierało do wszystkich stref.

Podejście projektowe

Minimalizm jako narzędzie, nie styl dekoracyjny. Każdy mebel pełni co najmniej dwie funkcje: łóżko z szufladami, biurko składane na ścianę, stołek pełniący rolę stolika nocnego. Zabudowa kuchenna ciągnie się wzdłuż krótszej ściany, zamknięta w jednolitą linię frontów bez uchwytów — otwieranie na dotyk.

Kolorystyka ograniczona do trzech tonów: biel na ścianach i zabudowie, jasny jesion na podłodze i blacie, ciemnoszare tekstylia. Brak wzorów, brak dekoracji na ścianach — jedynym elementem wizualnym jest zmiana faktury materiałów.

Strefę sypialnianą od reszty oddziela lekka zasłona na sufitowej szynie — zapewnia prywatność wieczorem, a w ciągu dnia odsunięta nie blokuje światła. Biurko umieszczone pod oknem korzysta z naturalnego oświetlenia przez cały dzień.

Przechowywanie zaprojektowane nad drzwiami, pod łóżkiem i w zabudowie kuchennej do sufitu. Mimo 26 m² klientka nie skarży się na brak miejsca na rzeczy.

Rezultat

Kawalerka, która dowodzi, że minimalizm nie musi oznaczać ascetyzmu. Przestrzeń jest ciepła, funkcjonalna i elastyczna — jednego dnia to biuro domowe, innego salon do spotkań ze znajomymi. Projekt realizowany na początku działalności studia, ale wciąż jeden z najczęściej udostępnianych w portfolio — jego ponadczasowość potwierdza trafność podejścia.

Galeria projektu Project gallery

Zainteresowany podobnym projektem? Interested in a similar project?

Napisz do mnie — omówimy Twoje potrzeby i ustalimy dalsze kroki. Get in touch and we'll discuss your needs and next steps.

Skontaktuj się Get in touch