Dom wolnostojący — Gdynia
Gdynia · Dom jednorodzinny

Dom wolnostojący — Gdynia Detached house — Gdynia

Lokalizacja Location Gdynia
Typ Type Dom jednorodzinny Dom jednorodzinny
Metraż Area ~160 m²
Styl Style Nowoczesny naturalny
Zakres Scope Projekt wnętrza + koncepcja

Wyzwanie projektowe

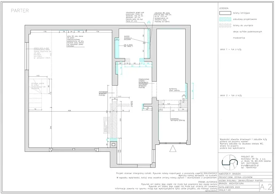
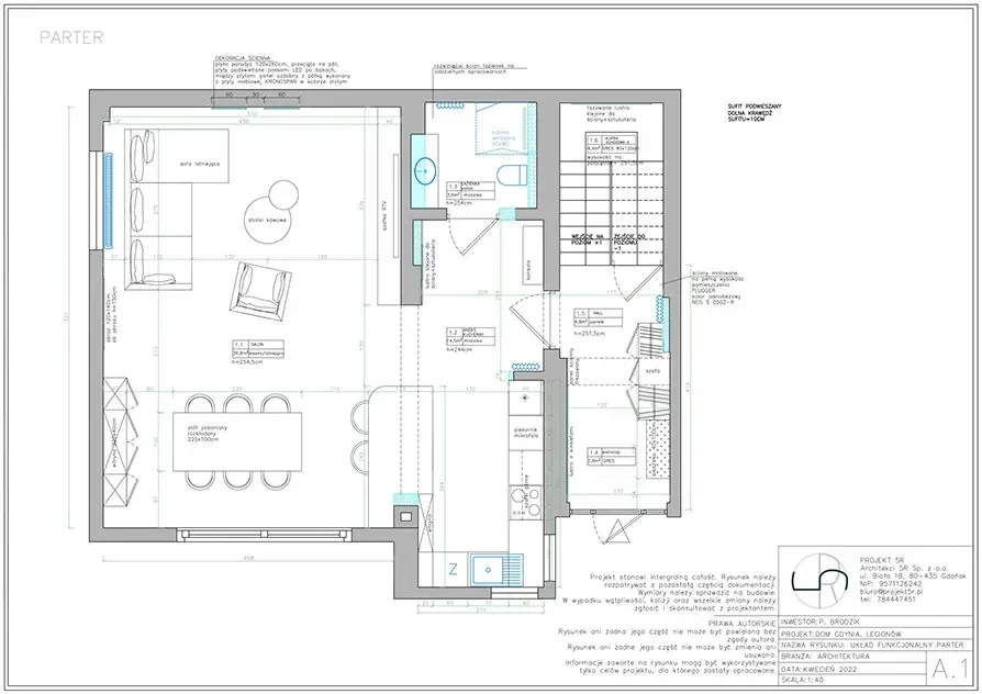
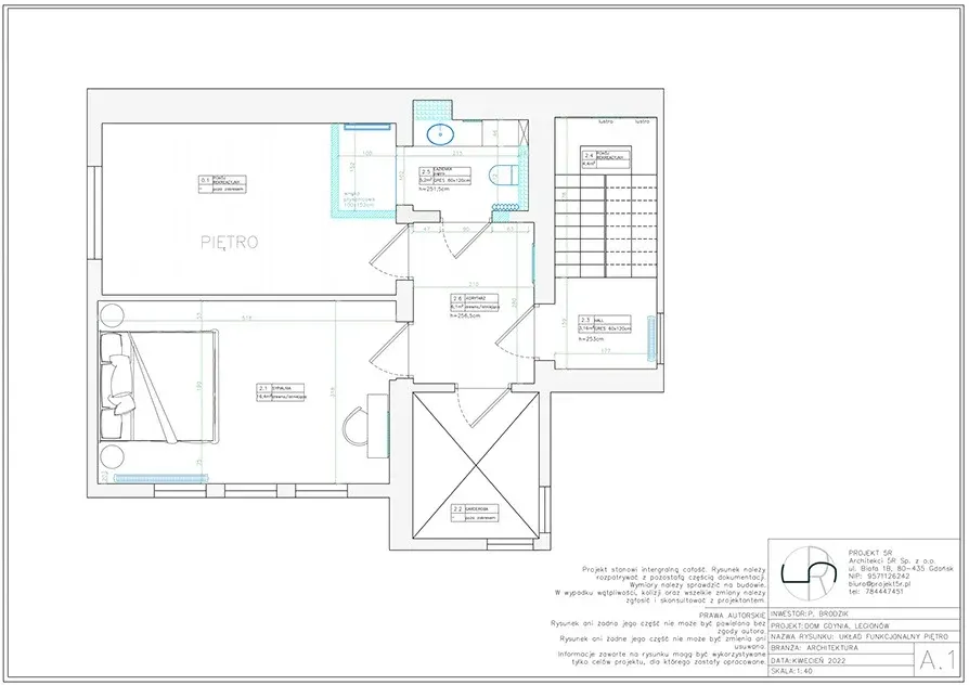
Dom wolnostojący w Gdyni o powierzchni okolo 160 m² to projekt, w którym skala sama w sobie stanowi wyzwanie. Rodzina czteroosobowa potrzebowała wnętrza, które łączy strefy wspólne z prywatnymi, zachowując spójną estetykę na obu kondygnacjach. Parter miał skupiać życie dzienne — otwarta kuchnia z jadalnią, salon i wejście — a piętro miało być cichą strefą odpoczynku z trzema sypialniami i łazienkami.

Klienci cenili naturalne materiały i spokojne, stonowane wnętrza, ale jednocześnie zależało im na nowoczesnym komforcie: ogrzewanie podłogowe, inteligentne oświetlenie i zabudowa z ukrytym przechowywaniem.

Podejście projektowe

Bazą projektu jest paleta naturalnych materiałów: dąb w ciepłym odcieniu na podłogach i zabudowie, kamień na blatach kuchennych i w łazienkach, tynk strukturalny na wybranych ścianach. Kolory ograniczono do odcieni beżu, szarości i bieli z czarnymi akcentami w osprzęcie.

Na parterze otwarta strefa dzienna płynnie przechodzi od kuchni przez jadalnię do salonu. Kuchnia jest częściowo ukryta za wysoką zabudową, która od strony salonu wygląda jak meblowa ściana. Jadalnia usytuowana centralnie pełni rolę serca domu. Salon z dużymi przeszkleniami otwiera się na ogród.

Na piętrze każda sypialnia ma indywidualny charakter, ale wszystkie łączy ta sama paleta materiałowa. Sypialnia główna z garderobą i łazienką en suite stanowi oddzielną strefę relaksu. Pokoje dzieci zaprojektowano z myślą o dorastaniu — elastyczny układ mebli pozwala na łatwą zmianę aranżacji bez remontu.

Rezultat

Spójny dom, w którym naturalne materiały i stonowana kolorystyka tworzą tło dla codziennego życia rodziny. Projekt udowadnia, że nowoczesne rozwiązania techniczne nie muszą kolidować z ciepłym, domowym charakterem wnętrza. Klienci szczególnie docenili zabudowy z ukrytym przechowywaniem, które eliminują wizualny bałagan bez rezygnacji z pojemności.

Galeria projektu Project gallery

Zainteresowany podobnym projektem? Interested in a similar project?

Napisz do mnie — omówimy Twoje potrzeby i ustalimy dalsze kroki. Get in touch and we'll discuss your needs and next steps.

Skontaktuj się Get in touch